Reforma de vivienda en valencia

Reforma de vivienda estilo Moderno en Extramurs, Valencia

Tiempo

4 meses

Superficie

60 m2

CO2 Compensado

4520 Kg CO2e

Descripción

El requisito principal de Mar, su propietaria, era priorizar la cocina y crear un espacio amplio, luminoso y con carácter para poder compartir con la familia. Un proyecto de reforma como primera vivienda.

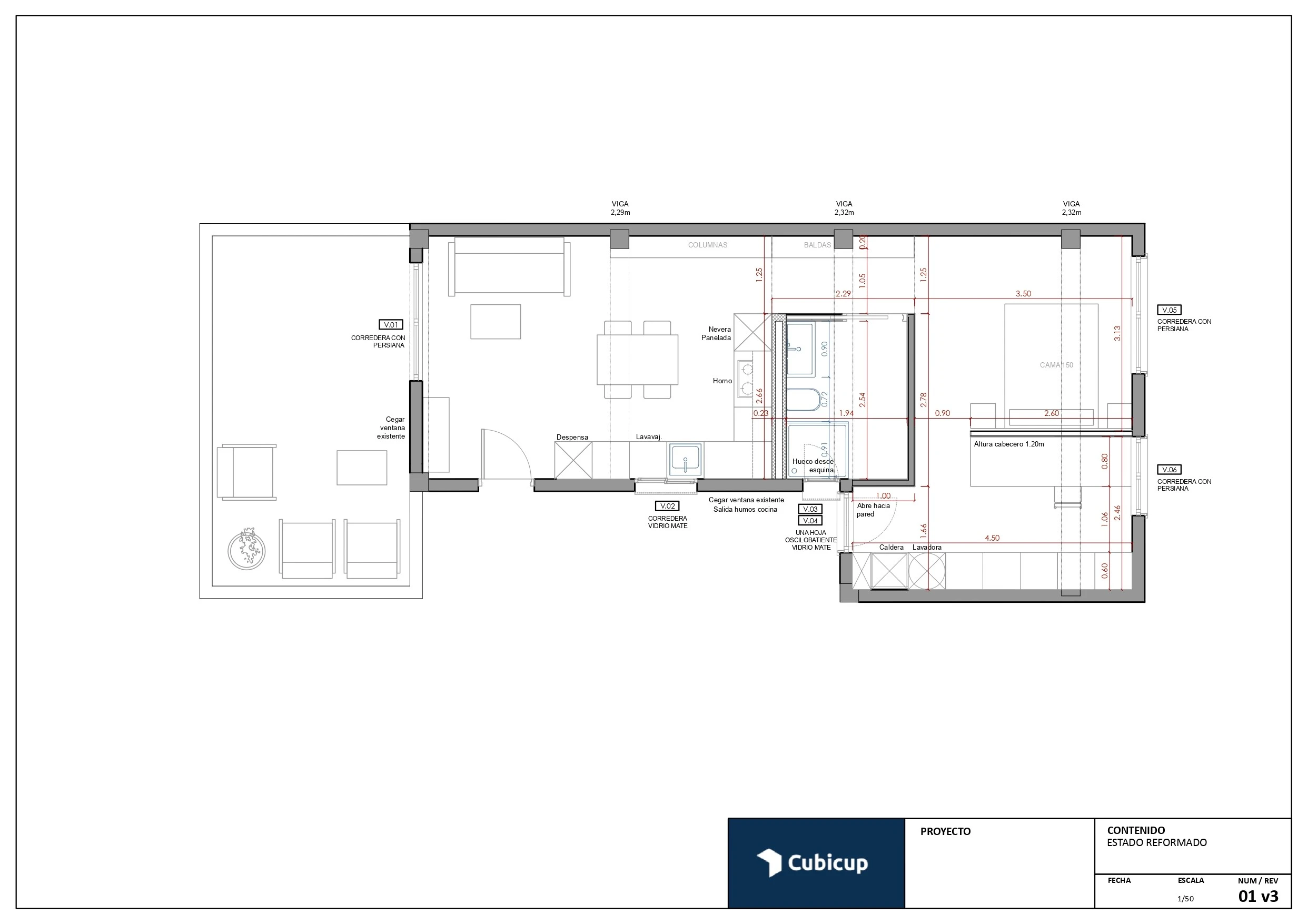
La antigua distribución era muy compartimentada, siendo una vivienda oscura. Después de la reforma hemos conseguido espacios abiertos, amplios y muy luminosos. Se ha mejorado la circulación, zonificación y la diferenciación entre los espacios de día y noche.

En la cocina, se le ha dado mucha importancia al almacenaje. Encontramos contraste de materiales y acabados a tono con revestimientos en colores piedra para generar sensación de continuidad. Tanto la cocina como los armarios de toda la vivienda se han hecho a medida para poder aprovechar al máximo del espacio.

Se ha creado un baño que destaca por la amplitud y su practicidad. El gris y el negro son los protagonistas, junto con detalles en acero cepillado, de acabado mate.

Es importante resaltar que la vivienda está diseñada para ser accesible a personas de movilidad reducida.

Hemos potenciado espacios mediante el color y la compresión / descompresión de volúmenes. Con este proyecto queda claro que practicidad y diseño no son términos contradictorios.

Materiales

Los suelos son porcelánicos de imitación al nogal, potenciando la materialidad del conjunto. Las paredes están pintadas con un tono general color piedra. Además, el bloque del baño ha sido potenciado, creando una gran caja central en color gris oscuro. En contraste, los techos son blancos generando sensación de altura. Se han combinado diferentes luminarias negras para aportar un toque singular a los techos.

Las puertas son lisas y se han diseñado a tono con los revestimientos, al igual que los armarios y la cocina. Las ventanas son blancas, de aluminio con rotura de puente térmico. 

El cliente ha estado abierto a sugerencias y se ha dejado aconsejar durante todo el proceso, generando sinergias muy positivas.

Proyecto y Renders 3D

Galería de imágenes